a a a a a a a a a a
logo

Rumah Pondok Indah _ Etha

-
DESCRIPTION :
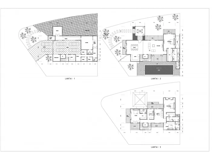
Lokasi rumah ini berada di lahan sudut (hook) pada persimpangan jalan di Jl. Gedung Hijau Raya di sebuah kawasan elit Pondok Indah Jakarta Selatan. Dengan bentuk tanah yang tidak beraturan, menjadikan tantangan tersendiri dalam merancang bangunan ini. Fasade bangunan menjadi titik perhatian untuk diexplorasi, menghadirkan tampilan yang hommy dan “eye catching”, bangunan bergaya arsitektur tropis tradisional ini berdiri megah di atas lahan yang cukup luas sekitar 850 m2.
Kapasitas garasi yang mampu menampung empat mobil ditambah dengan keberadaan carport tidaklah mengurangi kenyamanan sirkulasi penghuni, karena lantai dasar diperuntukkan khusus hanya untuk area servis.
Area kolam renang di lantai dengan pooldeck yang luas dilengkapi dengan gazebo, area taman yang luas mengelilingi bangunan menjadikan area living room terasa sangan lapang.
Nuansa kayu dan batu alam yang cukup dominan pada fasade bangunan, sudut atap yang tajam dengan tritisan yang cukup lebar sangat kental dengan nuansa bangunan tropis, kombinasi atap joglo dan aksen gebyok, menegaskan kesan tropis tradisional (jawa) yang cukup kental.

Anda tertarik dengan desain rumah ini, silahkan untuk menghubungi kami. Doffindo Internusa, jasa desain rumah dan kontraktor profesional, berkualitas, murah dan bergaransi

STYLE :
Tropis Tradisional
Size :
Lt 850 m2
Lb 700 m2
CLIENT :

More Projects